5 locali in vendita

Rapallo, Via sciesa
€ 350.000
5 locali 5 locali
95 Mq 95 Mq
2 bagni 2 bagni

5 locali in vendita

Rapallo, Via sciesa

Descrizione annuncio

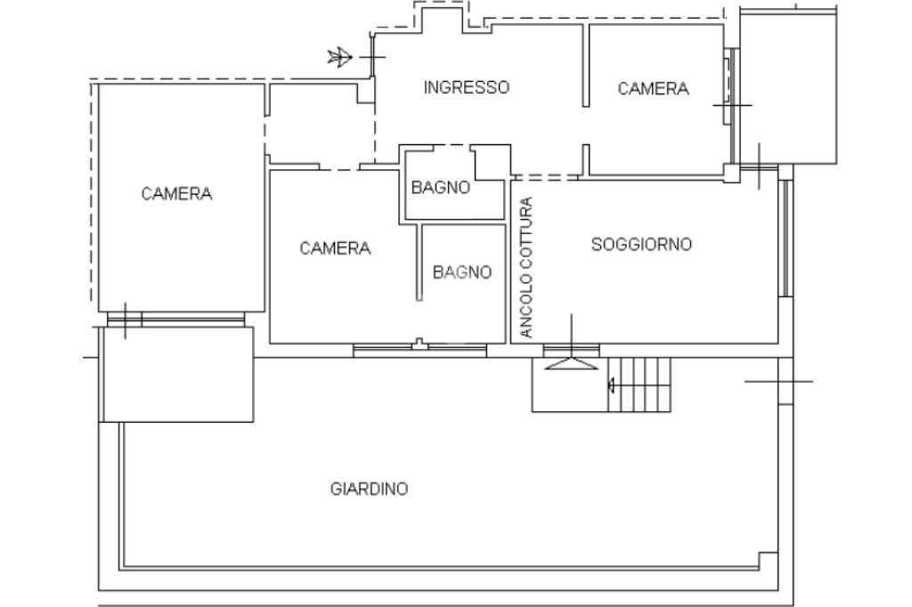
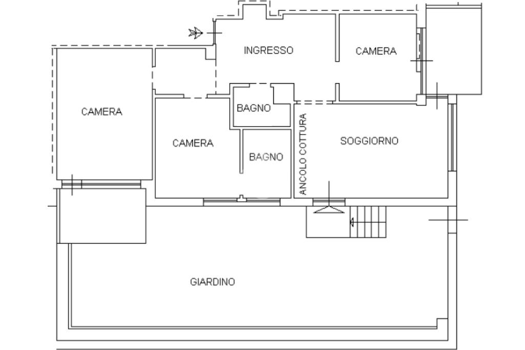
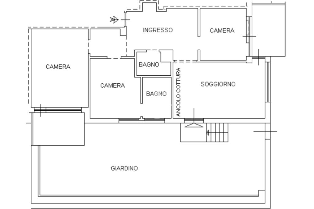
Novità su Rapallo - 5 locali completamente ristrutturato con terrazzo, 3 camere da letto, 2 bagni e cantina.


In un palazzo ordinato e ben curato, al piano terra, proponiamo in vendita un ampio immobile con una superficie interna di circa 95 mq.

L'ingresso si apre su una spaziosa zona giorno, composta da un luminoso soggiorno ideali per accogliere amici e familiari e da una cucina abitabile.

La zona notte ospita tre camere da letto, oltre a due bagni funzionali e una comoda dispensa.

L'immobile gode di una splendida terrazza, perfetta per momenti di relax all'aperto, cene estive o per chi ama coltivare piante e fiori. Sono presenti anche tre balconi che offrono ulteriori sfoghi esterni.

Completano la proprietà una cantina, e soprattutto, l'ampio terrazzo privato, con il pavimento completamente nuovo, con accesso tramite cancello carrabile e possibilità di parcheggiare.

Una soluzione novedosa, ristrutturata e completa, ideale per chi cerca ampi spazi esterni, indipendenza e comfort, pur restando in un contesto condominiale ordinato (riscaldamento autonomo).

L'appartamento verra' eventualmente consegnato compresso l'arredo e pronto per abitare dal momento in cui viene fatto il rogito.

Se state cercando una casa con 3 camere, non perdere l'occasione di visionare questo immobile!

Tecnocasa Studio Rapallo - Corso Goffredo Mameli 231 - 0185 234102

Mostra tutto

Nelle vicinanze

Trasporto pubblico Trasporto pubblico
stazione di Rapallo
stazione di Rapallo
1,3 Km
Santa Margherita Ligure - Portofino
Santa Margherita Ligure - Portofino
1,9 Km
Trasporto pubblico
30 m
Capolinea San Massimo (7644)
Capolinea San Massimo (7644)
2,5 Km
Santa Margherita Ligure
2,2 Km
Ricariche auto elettriche Ricariche auto elettriche
Due Energie - GMC SOLAR SOLUTIONS
230 m
Hotel l'Approdo
1,8 Km
Duferco Santa Gramsci
2,0 Km
Hotel Continental | e-Station
2,0 Km
Duferco Municipio di S. Margherita Ligure
2,1 Km
Scuole Scuole
Giovanni Pascoli
340 m
Istituto Istruzione Superiore Statale F. Liceti
530 m
Scuola Media Statale A. Giustiniani
910 m
Scuole
1,1 Km
Scuola Primaria Antola
1,6 Km
Farmacia Farmacia
N.S. di Montallegro
780 m
Farmacia
1,2 Km
Farmacia Colombo
1,3 Km
di Piazza Venezia
1,3 Km
Farmacia Internazionale
1,6 Km
Ospedali Ospedali
Nostra Signora di Montallegro
620 m
Supermercati Supermercati
Carrefour Express
210 m
Punto SMA
290 m
Gulliver
690 m
IperSoap
700 m
Ekom
760 m
Negozi Negozi
Negozi
970 m
Panificio Tossini
1,3 Km
Panificio Zena
1,3 Km
L‘artista del pane
1,3 Km
Mondo Pane
1,4 Km
Bar Bar
Bar Isterika
350 m
Bar Nostromo
430 m
Bar Poletti
450 m
Uno Bar
1,2 Km
Royal8 Skybar
1,3 Km
Ristoranti Ristoranti
La Sosta
270 m
Hostaria U Nostromu
430 m
Trattoria Ristorante Boschetto
760 m
Ristorante Pizzeria Lo Scugnizzo
810 m
Ristorante Da Marco
950 m
Mostra tutto

Caratteristiche

Rif.:
61139172
Piano:
Terra di 5 con ascensore
Totale piani:
5
Balconi:
3
Terrazzi:
1
Camere da letto:
3
Mostra tutto
Prezzo Prezzo
€ 350.000
Rata mutuo Rata mutuo
€ 1.663 / mese
Spese annue Spese annue
€ 1.000
Proponi il tuo prezzoProponi il tuo prezzo

Classe Energetica

Questo immobile è esente da classe energetica
Anno di costruzione:
1970
Riscaldamento:
Autonomo
Tipo impianto:
A radiatori
Tipo alimentazione:
Metano

Ti interessa visionare l'immobile?

Fissa un appuntamento  Fissa un appuntamento

Richiedi informazioni

Clicca su Leggi per aprire l'informativa
* Questi campi sono obbligatori

Calcola il tuo mutuo

Semplice e senza impegno
Anticipo

( % )
Mutuo

( % )

pochi semplici passi

inserisci i tuoi dati
Questionario completato
Grazie per aver richiesto un appuntamento senza impegno con un nostro Consulente del Credito e Assicurativo.

Hai inserito correttamente tutti i dati necessari e a breve riceverai una e-mail con un link da convalidare per inviare i tuoi dati.
Affiliato
Studio Rapallo Srl
Via Mameli, 231 16035 Rapallo (GE)
Via Mameli, 231 16035 Rapallo (GE)
Zona: Rapallo
Mostra su mappa
Orari: tutti i giorni 9:00/12:30 e 15:00/20:00 sabato chiusura alle 19:30
Affiliato
Studio Rapallo Srl
Via Mameli, 231 16035 Rapallo (GE)

2026 Tecnocasa Franchising S.p.A. - P. IVA 08365160152 - Via Monte Bianco 60/A 20089 Rozzano (MI). Ogni agenzia ha un proprio titolare ed è autonoma. Privacy policy | Policy utilizzo | Cookie policy