Quadrilocale in vendita

Rapallo, Via Fratelli Betti
€ 170.000
4 locali 4 locali
75 Mq 75 Mq
1 bagno 1 bagno

Quadrilocale in vendita

Rapallo, Via Fratelli Betti

Descrizione annuncio

Tecnocasa rapallo propone in vendita un ottimo 4 locali in ottime condizioni nel residence di via fratelli betti.

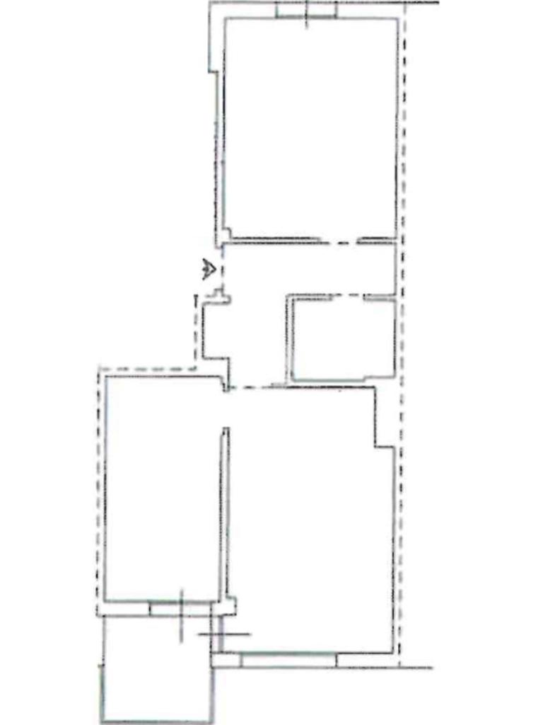
L'appartamento si presenta con un ampio ingresso, seguito da un luminoso soggiorno con angolo cottura, da dove si può accedere al terrazzino vivibile dell'appartamento. Successivamente vi è la prima camera da letto, dopodiché abbiamo il bagno in ottime condizioni , ed infine la camera matrimoniale di ampia metratura.

Situato in un contesto residenziale tranquillo, l'immobile si compone di quattro locali ben distribuiti, offrendo spazi accoglienti e versatili. L'appartamento è perfetto per chi desidera personalizzare gli ambienti secondo il proprio gusto, grazie alla disposizione interna che permette diverse soluzioni di arredo. La posizione strategica consente di raggiungere facilmente i principali servizi e le attrazioni della zona, rendendolo una scelta pratica per famiglie o coppie. Un'opportunità interessante per chi desidera vivere in una delle località più affascinanti della Riviera Ligure, con la possibilità di godere di un ambiente sereno e ben collegato.

L'immobile si trova nel residence che può godere di piscina e campo da tennis. Conclude la proprietà inoltre una comodissima cantina di proprietà.

Mostra tutto

Nelle vicinanze

Trasporto pubblico Trasporto pubblico
stazione di Rapallo
stazione di Rapallo
520 m
Santa Margherita Ligure - Portofino
Santa Margherita Ligure - Portofino
2,5 Km
Trasporto pubblico
410 m
Santa Margherita Ligure
2,9 Km
Ricariche auto elettriche Ricariche auto elettriche
Due Energie - GMC SOLAR SOLUTIONS
1,8 Km
Hotel l'Approdo
2,1 Km
Hotel Continental | e-Station
2,5 Km
Duferco Santa Gramsci
2,7 Km
Scuole Scuole
Scuole
640 m
Scuola Primaria Antola
670 m
Liceo Classico Statale Giovanni da Vigo
700 m
Scuola Media Statale A. Giustiniani
700 m
Istituto Istruzione Superiore Statale F. Liceti
1,1 Km
Farmacia Farmacia
Farmacia
220 m
Farmacia Internazionale
700 m
di Piazza Venezia
710 m
N.S. di Montallegro
970 m
Farmacia Colombo
1,2 Km
Ospedali Ospedali
Nostra Signora di Montallegro
1,7 Km
Supermercati Supermercati
Punto Simply Market
380 m
Carrefour
560 m
Gulliver
730 m
Di Meglio
750 m
Carrefour Express
790 m
Negozi Negozi
Schenone
80 m
Carrefour Express
630 m
Negozi
650 m
Panificio Tossini
650 m
L‘artista del pane
660 m
Bar Bar
Zino&Zino
290 m
Uno Bar
530 m
Bar
540 m
L'angolino
550 m
Cantine d'Italia
700 m
Ristoranti Ristoranti
Villa delle Donne
420 m
Sotto la scala
560 m
Il Grottino
610 m
Cavallino Bianco
630 m
Il Trattato
630 m
Mostra tutto

Caratteristiche

Rif.:
61061643
Piano:
1 di 4 con ascensore (Piano medio)
Terrazzi:
1
Camere da letto:
2
Arredamento:
Completo
Condizionamento:
Assente
Mostra tutto
Prezzo Prezzo
€ 170.000
Rata mutuo Rata mutuo
€ 808 / mese
Spese annue Spese annue
€ 2.900
Proponi il tuo prezzoProponi il tuo prezzo
Immobile valutato con T·Valuta

Classe Energetica

F
F
F
F
F
F
F
F
F
EP globale non rinnovabile:
29.59 kW h/m² anno
EP globale rinnovabile:
80.52 kW h/m² anno
EP invernale del fabbricato:
EP estiva del fabbricato:
Anno di costruzione:
1975
Riscaldamento:
Centralizzato
Tipo impianto:
A radiatori
Tipo alimentazione:
Metano

Ti interessa visionare l'immobile?

Fissa un appuntamento  Fissa un appuntamento

Richiedi informazioni

Clicca su Leggi per aprire l'informativa
* Questi campi sono obbligatori

Calcola il tuo mutuo

Semplice e senza impegno
Anticipo

( % )
Mutuo

( % )

pochi semplici passi

inserisci i tuoi dati
Questionario completato
Grazie per aver richiesto un appuntamento senza impegno con un nostro Consulente del Credito e Assicurativo.

Hai inserito correttamente tutti i dati necessari e a breve riceverai una e-mail con un link da convalidare per inviare i tuoi dati.
Affiliato
Studio Rapallo Srl
Via Mameli, 231 16035 Rapallo (GE)
Via Mameli, 231 16035 Rapallo (GE)
Zona: Rapallo
Mostra su mappa
Orari: tutti i giorni 9:00/12:30 e 15:00/20:00 sabato chiusura alle 19:30
Affiliato
Studio Rapallo Srl
Via Mameli, 231 16035 Rapallo (GE)

2026 Tecnocasa Franchising S.p.A. - P. IVA 08365160152 - Via Monte Bianco 60/A 20089 Rozzano (MI). Ogni agenzia ha un proprio titolare ed è autonoma. Privacy policy | Policy utilizzo | Cookie policy